Vente Local D’activité Hoerdt
REF:POHOMAE
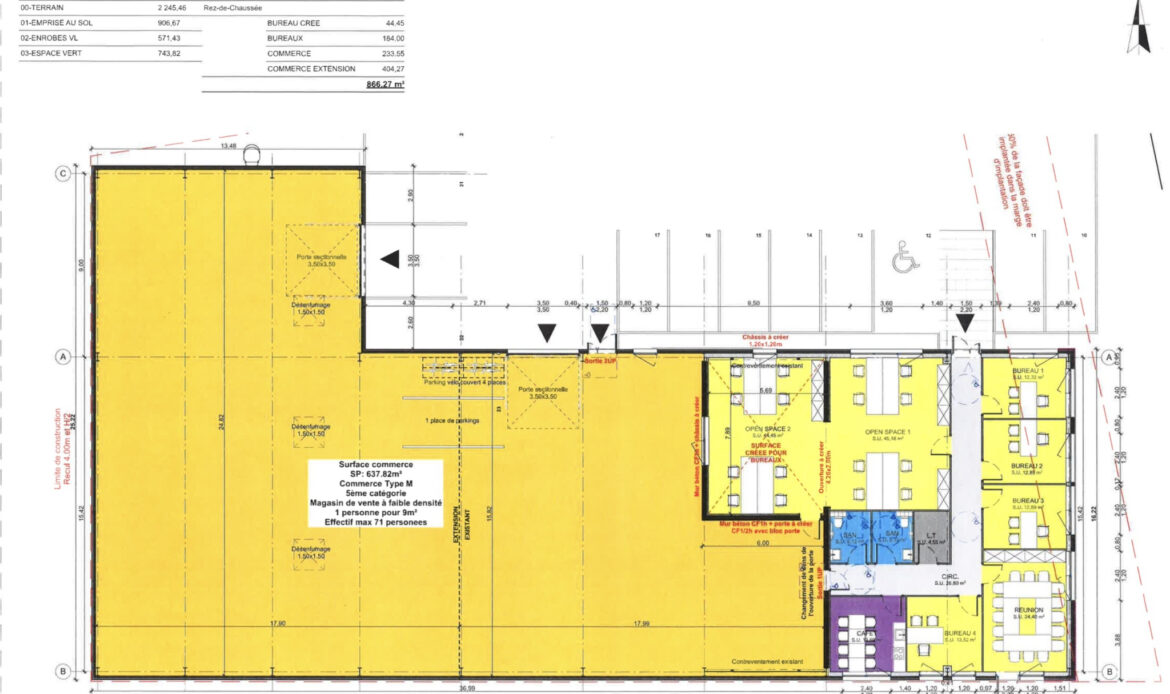
À saisir , à Hoerdt dans la zone d’activité du Birken, à 200 m de l’accès autoroute, superbes locaux de 835 m2 sur 22,46 ares, comme neufs, érigés en 2 temps, 2018 et extension en 2021.
Ils se composent de :
– 220 m2 de bureaux, salle de réunion, etc. (plans ci-joints) chauffés et climatisés via une PAC air/air, espace cuisine, sanitaires.
– 615 m2 au sol de surface de stockage/atelier (7,5 m de hauteur).
– 2 portes sectionnelles de 3,5 m X 3,5 m.
– Électricité en triphasé.
– 23 places de parking.
Prix du bien : 1 250 000 EUR net vendeur + 3 % d’honoraires d’agence à la charge de l’acquéreur.
Le parc d’activité du Birken se situe à 10 minutes au nord de Strasbourg, et se distingue par sa proximité aux :
– grands axes routiers.
– EcoParc de la Basse-Zorn de Hoerdt.
– ses 386 entreprises, et son développement en cours.
– Eco-Parc de Reichstett.
Pour tous renseignements complémentaires ou une visite, votre contact :
Patrice Otto
B.A Immobilier
Tel: 0670 111 333

















