Vente Appartement Schiltigheim
REF:POLEH
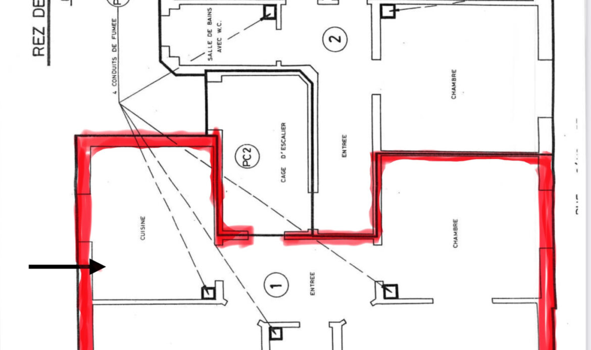
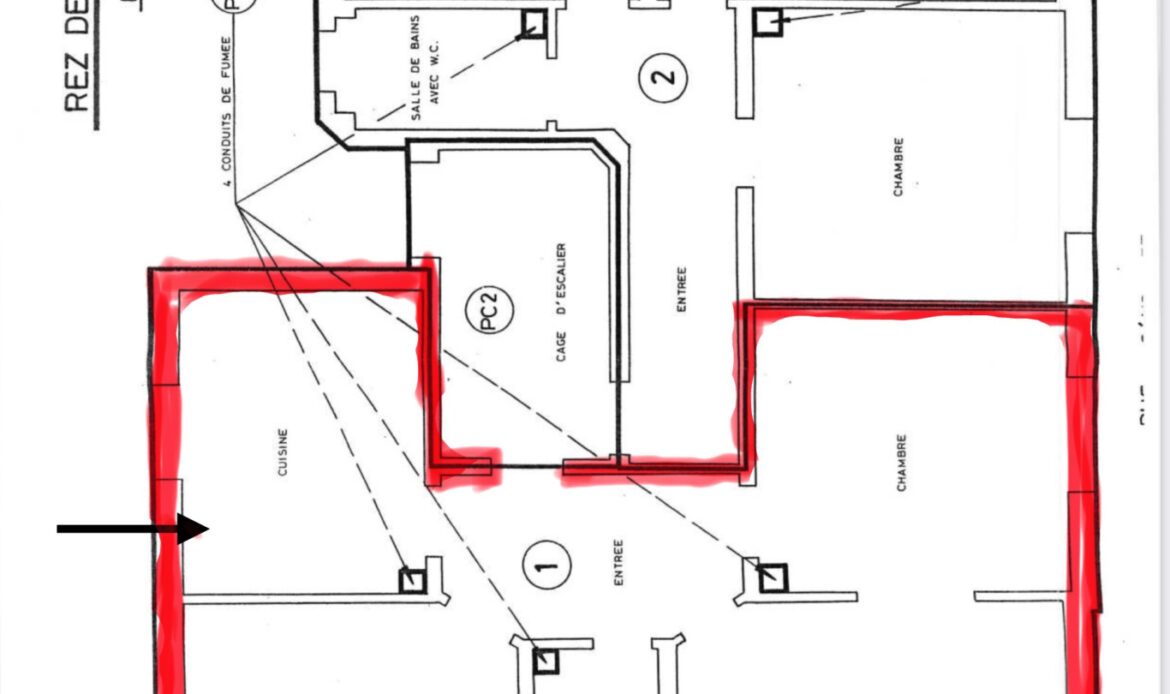
Pour investisseur ( APPARTEMENT VENDU LOUÉ à 760€ HC ) A saisir , au calme , au rez-de-chaussée surélevé d’un immeuble au cachet indéniable très bien tenu , superbe 3 pièces de 73m2 bénéficiant d’une triple exposition , une cave. ( possibilité garage )
L’appartement de 73m2 est très lumineux grâce à sa triple exposition , bénéficie d’une belle hauteur sous plafonds , équipée de double vitrage , parquet massif , chauffage central au gaz et se compose de :
– Une entrée distribuant
– superbe espace de vie salon-séjour 17m2 .
– Une spacieuse cuisine séparée de 12,5m2 .
– 2 grandes chambres de 14,5m2 et 15,5m2.
– une salle de bains avec baignoire , wc et fenêtre .
Une cave vient compléter ce bien . ( Possibilité garage )
L’appartement se situe à 100m du parc Léo Delibes , à proximité de toutes les commodités.
Équipements de l’appartement : chauffage central gaz par radiateurs, belle hauteur sous plafonds , parquet massif , double vitrage .
Prix du bien : 189 000€ HAI Honoraires d’agence inclus dans le prix de vente.
Charges : environ 200€/mois chauffage et eau inclus.
Pour tout renseignements ou une visite , votre contact :
Patrice Otto
Tel: 06 70 111 333
Négociateur B.A Immobilier
Honoraires charge: vendeur









